Chalet 1 | El Mirador d’Anyós
Contecta con wahtsapp

Home > propiedades > Chalet 1 | El Mirador d’Anyós

RS1516

2.495.000 €

Chalet 1 | El Mirador d’Anyós

  • 460 m2
  • 171 m2
  • 4
  • 5
  • 3

Chalet 1 | El Mirador d’Anyós

  • Ascensor
  • Gimnasio
  • Cocina Amueblada
  • Armarios Empotrados
  • Exterior
  • Zonas Verdes
  • Lavadero

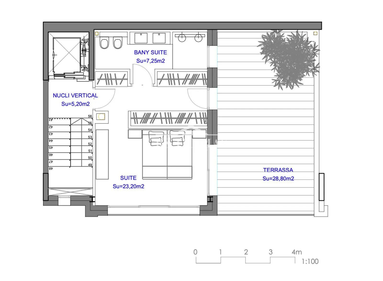
El Chalet 1 | El Mirador de Anyós redefine el concepto de vivienda sostenible y de alta gama. Diseñado según los estrictos estándares passivhaus, este chalet rectangular aprovecha al máximo la luz natural y la orientación para garantizar espacios saludables, un confort térmico óptimo y un consumo energético mínimo.

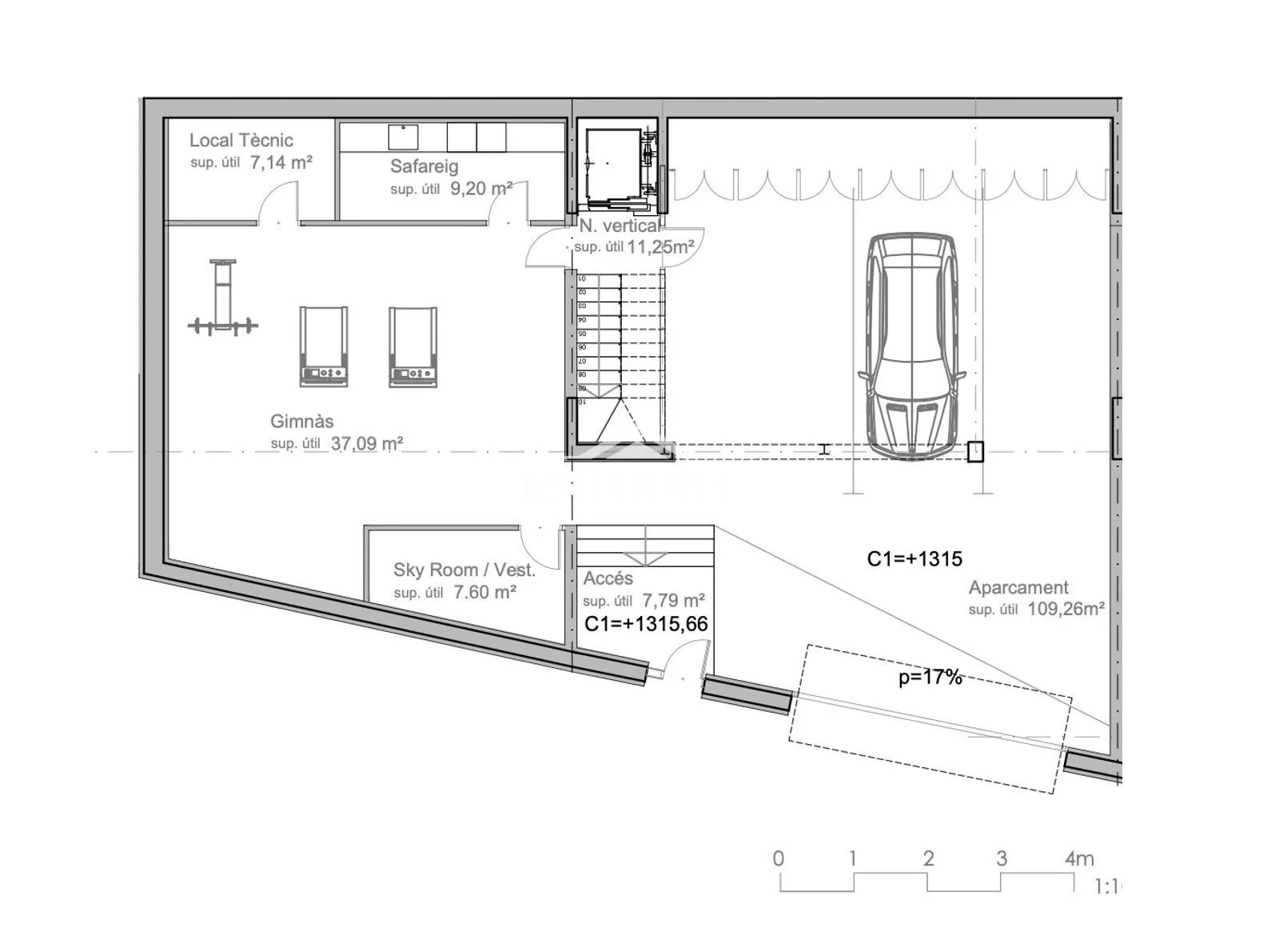
Con 467 m² construidos, el Chalet 1 se abre a unas vistas espectaculares del valle, integrándose de manera armoniosa con el paisaje. Dispone de un aparcamiento privado de 143 m², una sala polivalente diáfana ideal para gimnasio, spa o despacho, y 342 m² de zonas exteriores entre terraza y jardín, pensadas para disfrutar de la privacidad y el contacto con la naturaleza.

En el interior, el chalet cuenta con cuatro habitaciones y cinco baños (uno de ellos aseo), con una distribución flexible que se adapta a las necesidades de cada propietario. Los materiales naturales, la luminosidad y la conexión con la vegetación convierten este chalet en un verdadero refugio de bienestar donde el lujo y la sostenibilidad conviven en perfecta armonía.

Solicitar más información

Inmuebles similares La Massana

Ref: RS1523

Compra · Casas

La Massana

  • 480 m2
  • 4
  • 5
  • 3

2.495.000

Ref: RS1522

Compra · Casas

La Massana

  • 480 m2
  • 4
  • 5
  • 3

2.485.500

Ref: RS1513

Compra · Casas

La Massana

  • 500 m2
  • 5
  • 6
  • 2

3.500.000