Chalet 5 | El Mirador de Anyós
Contecta con wahtsapp

Home > propiedades > Chalet 5 | El Mirador de Anyós

RS1520

2.490.000 €

Chalet 5 | El Mirador de Anyós

  • 550 m2
  • 96 m2
  • 4
  • 5
  • 3

Chalet 5 | El Mirador de Anyós

  • Cocina Amueblada
  • Armarios Empotrados
  • Ascensor
  • Exterior
  • Zonas Verdes
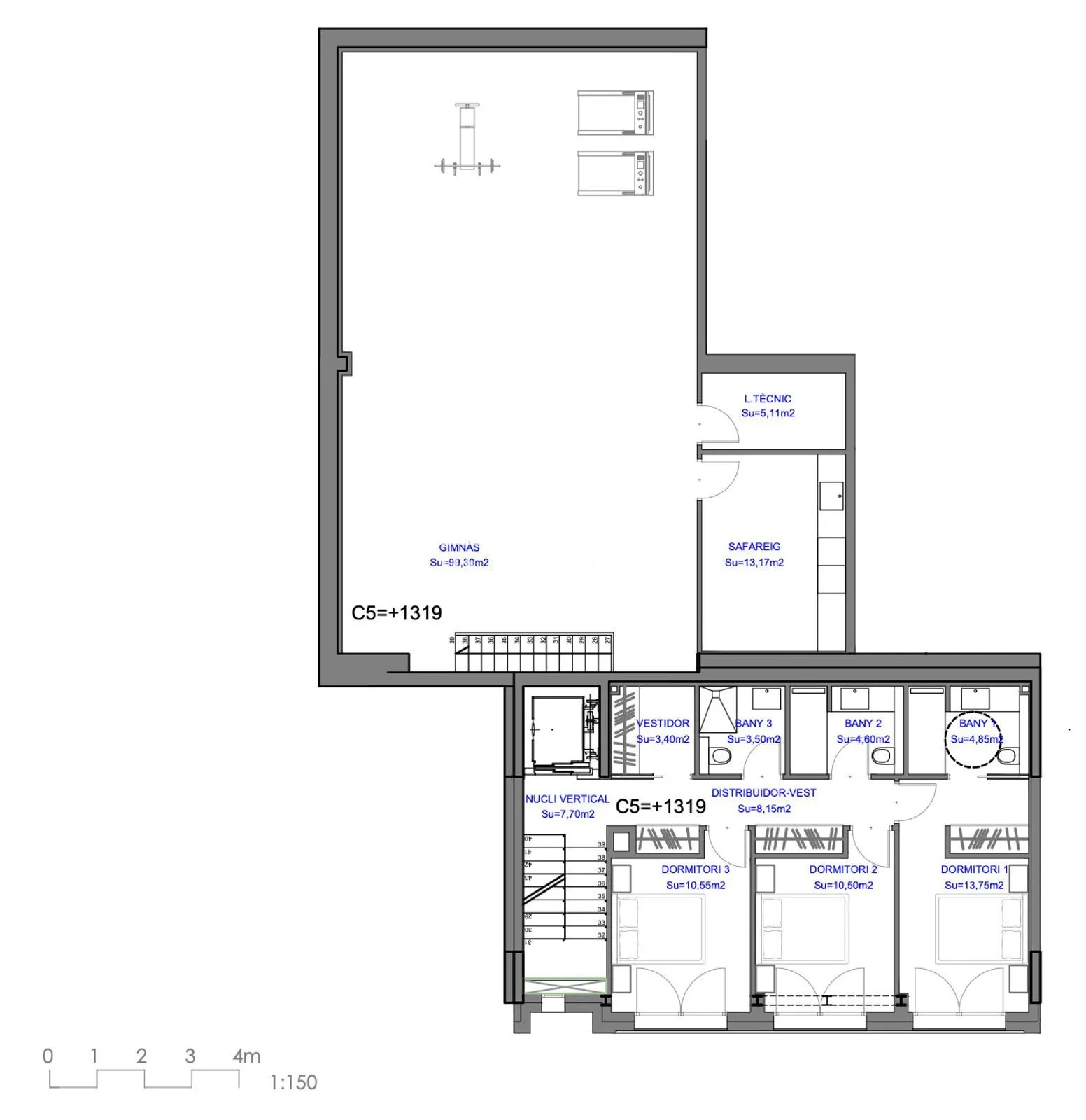
  • Gimnasio
  • Lavadero

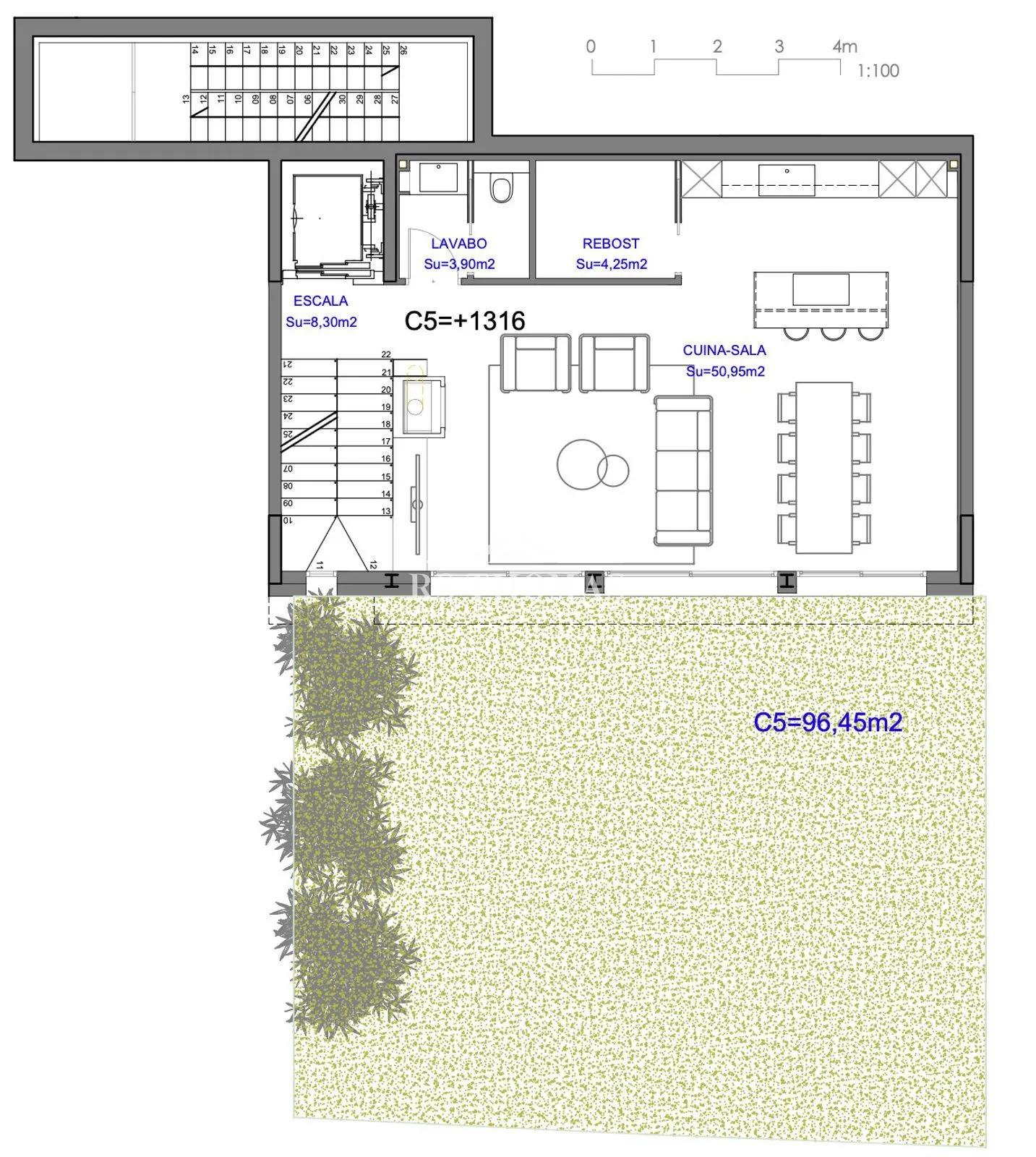
El Chalet 5 del Mirador de Anyós redefine el concepto de vivienda sostenible y de alta gama. Diseñado bajo los exigentes estándares Passivhaus, este chalet de líneas rectangulares aprovecha al máximo la luz natural y la orientación para ofrecer espacios saludables, confort térmico óptimo y un consumo energético mínimo.

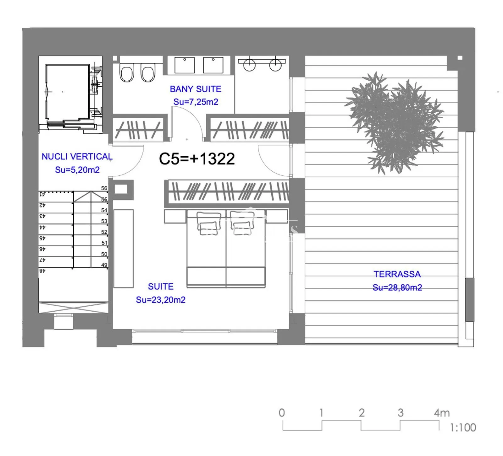
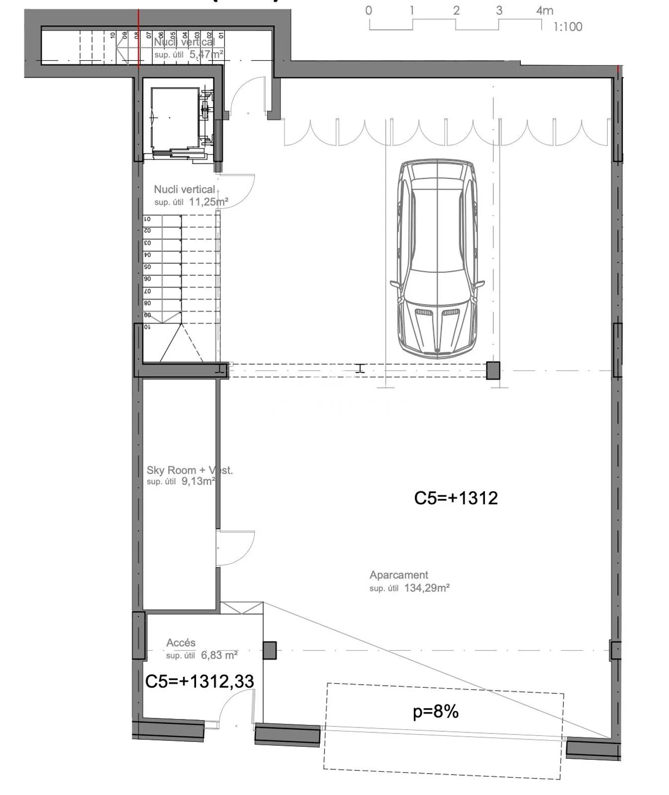
Con 558 m² construidos, el Chalet 5 se abre a vistas espectaculares del valle, integrándose de forma armoniosa con el entorno natural. Dispone de una zona de aparcamiento privado de 186 m², una sala polivalente diáfana ideal para gimnasio, spa o despacho, y 124 m² de zonas exteriores entre terraza y jardín, pensadas para disfrutar de la privacidad y el contacto con la naturaleza.

En el interior, el chalet cuenta con cuatro habitaciones y cinco baños (uno de ellos aseo), con una distribución flexible que se adapta a las necesidades de cada propietario. Los materiales naturales, la luminosidad y la conexión con la vegetación convierten este chalet en un auténtico refugio de bienestar, donde el lujo y la sostenibilidad conviven en perfecta armonía.

Solicitar más información

Inmuebles similares La Massana

Ref: RS1521

Compra · Casas

La Massana

  • 490 m2
  • 4
  • 5
  • 3

2.495.000

Ref: RS1513

Compra · Casas

La Massana

  • 500 m2
  • 5
  • 6
  • 2

3.500.000

Ref: RS1517

Compra · Casas

La Massana

  • 380 m2
  • 4
  • 5
  • 3

2.480.000