Chalet 8 | El Mirador de Anyós
Contecta con wahtsapp

Home > propiedades > Chalet 8 | El Mirador de Anyós

RS1521

2.495.000 €

Chalet 8 | El Mirador de Anyós

  • 490 m2
  • 134 m2
  • 4
  • 5
  • 3

Chalet 8 | El Mirador de Anyós

  • Cocina Amueblada
  • Armarios Empotrados
  • Ascensor
  • Exterior
  • Zonas Verdes
  • Gimnasio
  • Lavadero

El Chalet 8 del Mirador de Anyós redefine el concepto de vivienda sostenible y de alta gama. Diseñado según los estrictos estándares Passivhaus, este chalet de forma rectangular aprovecha al máximo la luz natural y la orientación para garantizar espacios saludables, un confort térmico óptimo y un consumo energético mínimo.

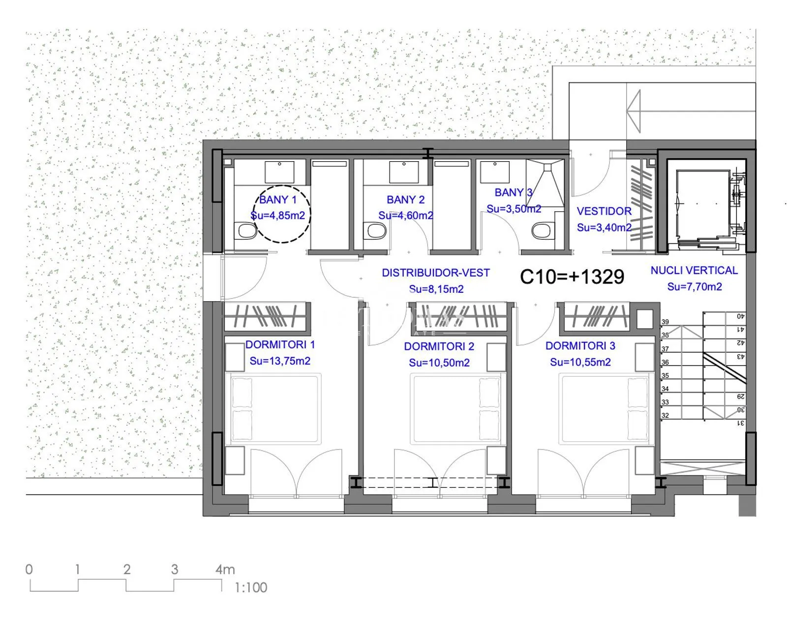
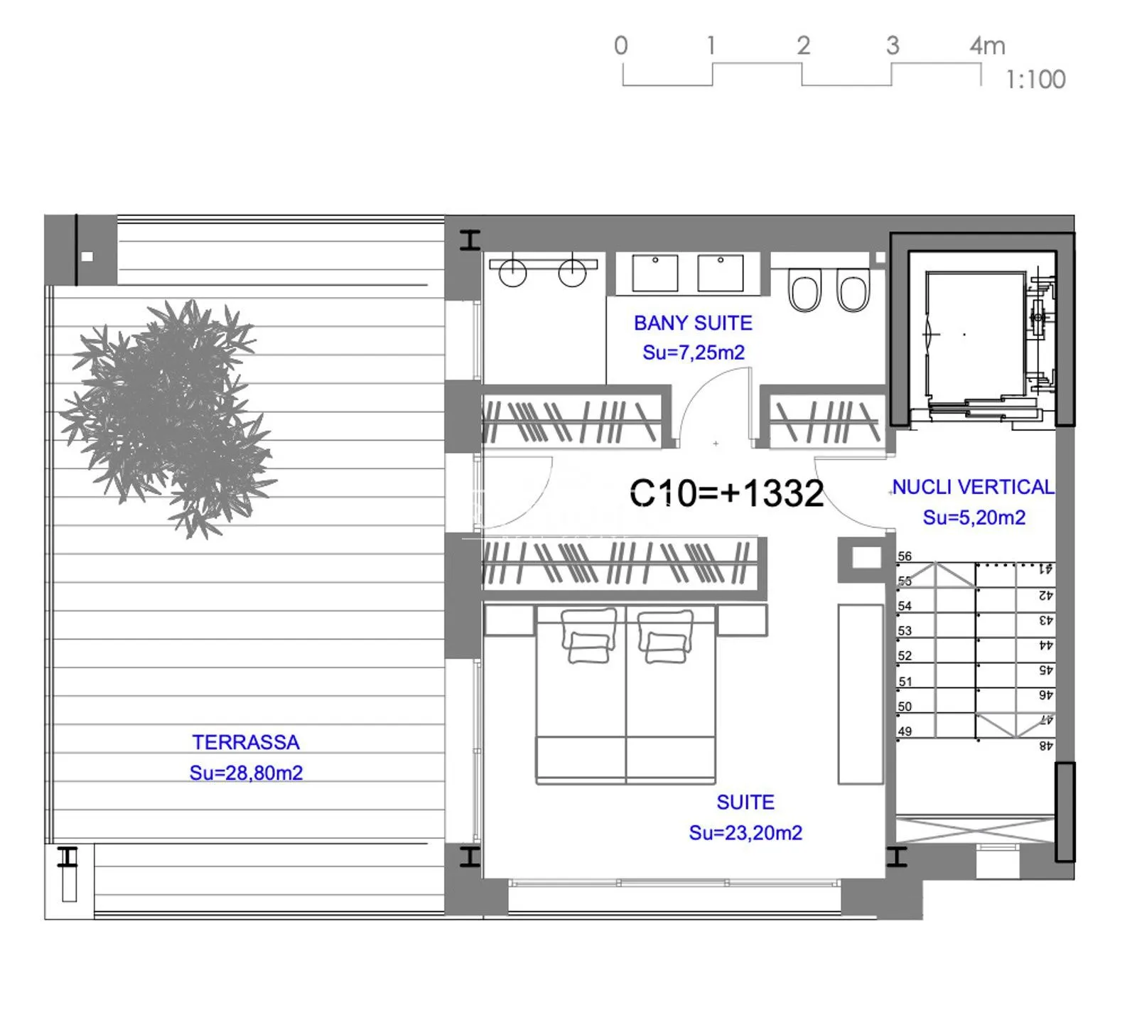
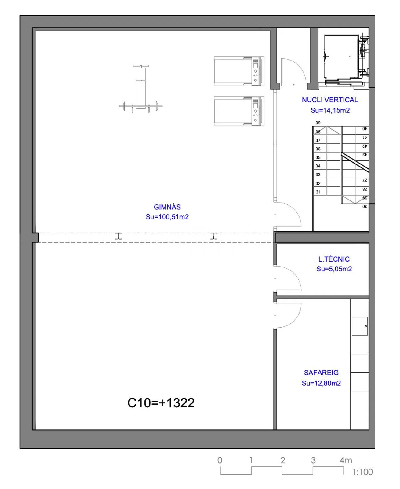
Con 495 m² construidos, el Chalet 8 se abre a vistas espectaculares del valle, integrándose de manera armoniosa con el paisaje. Dispone de un aparcamiento privado de 89,55 m², una sala polivalente diáfana ideal para gimnasio, spa o despacho, y 246 m² de zonas exteriores entre terraza y jardín, concebidas para disfrutar de la privacidad y el contacto con la naturaleza.

En el interior, el chalet cuenta con cuatro habitaciones y cinco baños (uno de ellos aseo), con una distribución flexible que se adapta a las necesidades de cada propietario. Los materiales naturales, la luminosidad y la conexión con la vegetación convierten este chalet en un verdadero refugio de bienestar, donde el lujo y la sostenibilidad conviven en perfecta armonía.

Solicitar más información

Inmuebles similares La Massana

Ref: RS1519

Compra · Casas

La Massana

  • 485 m2
  • 4
  • 5
  • 3

2.485.500

Ref: RS1520

Compra · Casas

La Massana

  • 550 m2
  • 4
  • 5
  • 3

2.490.000

Ref: RS1522

Compra · Casas

La Massana

  • 480 m2
  • 4
  • 5
  • 3

2.485.500