Piso de nueva construcción – Residencial Marió | Bloque B | Piso 1-2
Contecta con wahtsapp

Home > propiedades > Piso de nueva construcción – Residencial Marió | Bloque B | Piso 1-2

RS198

750.000 €

Piso de nueva construcción – Residencial Marió | Bloque B | Piso 1-2

  • 115 m2
  • 3
  • 2

Piso de nueva construcción – Residencial Marió | Bloque B | Piso 1-2

  • Cocina Amueblada
  • Armarios Empotrados
  • Ascensor
  • Exterior
  • Lavadero

Espectacular piso de nueva construcción para comprar en Escaldes-Engordany. Esta vivienda se encuentra en una de las mejores zonas del país, a pocos minutos del centro donde se encuentra el principal eje comercial del país. Con una ubicación envidiable y bonitas vistas, este piso es una oportunidad única de vivir en una de las zonas más exclusivas de Andorra.

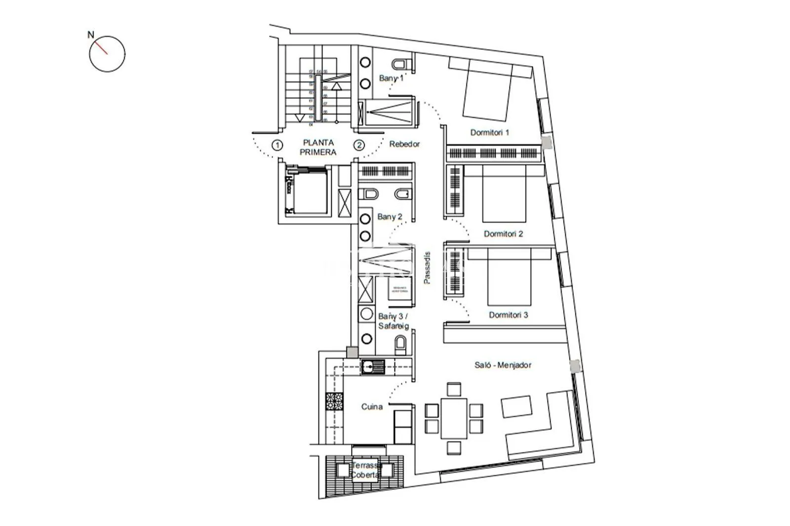
El piso consta de 114,65 m² y se distribuye de la siguiente manera.

En la zona de día encontramos un bonito recibidor que da paso a un amplio y luminoso salón comedor con vistas exteriores. Junto a esta estancia, encontramos una cocina independiente totalmente equipada con electrodomésticos de alta calidad, como la campana extractora, la placa de inducción y el horno eléctrico de la casa Bosch, el fregadero de acero inoxidable de la marca Roca y las griferías Grohe. La cocina también dispone de salida a la terraza cubierta de 3,65 m² para disfrutar de las fantásticas vistas que rodean la propiedad. Esta zona se complementa con dos baños independiente completos de los cuales uno puedo usarse también como zona para la lavandería.

La zona de noche está formada por 3 dormitorios, dos dobles y otro en suite con baño completo. Todos los dormitorios son exteriores y están equipados con armarios empotrados.

Este magnífico piso ha sido diseñado pensando en el máximo confort y en cada detalle. Los acabados y materiales son de alta calidad, como la estructura del edificio que se basa en pilares y losas de hormigón armado con aislamiento térmico según la normativa. Los vidrios son adaptados a las exigencias energéticas con cámara de aire y las puertas de acceso a los hogares son blindadas, mientras que las puertas interiores cuentan con acabados macizos de roble lacado de fábrica.

Además, el piso cuenta con un sistema de producción de energía con aerotermia con unidad termodinámica exterior a cubierta, un sistema de suelo radiante y una instalación de climatización frío-calor.

Para su total comodidad existe la posibilidad de adquirir una plaza de aparcamiento.

Solicitar más información

Inmuebles similares Escaldes-Engordany

Ref: RS973

Compra · Pisos

Escaldes-Engordany

  • 123 m2
  • 3
  • 2
  • 0

1.249.500

Ref: RS1444

Compra · Pisos

Escaldes-Engordany

  • 110 m2
  • 3
  • 2
  • 2

1.200.000

Ref: RS933

Compra · Pisos

Escaldes-Engordany

  • 123 m2
  • 3
  • 2
  • 0

1.310.000