Casa con jardín y ascensor para comprar en Escaldes
Contecta con wahtsapp

Home > propiedades > Casa con jardín y ascensor para comprar en Escaldes

RS482

2.650.000 €

Casa con jardín y ascensor para comprar en Escaldes

  • 597 m2
  • 4
  • 5
  • 7

Casa con jardín y ascensor para comprar en Escaldes

  • Ascensor
  • Cocina Amueblada
  • Armarios Empotrados

Casa en construcción para comprar en Escaldes-Engordany, ubicada en una tranquila zona residencia, rodeado de naturaleza a pocos minutos del centro de la parroquia donde encontrará todos los servicios necesarios, como colegios, escuelas, restaurantes, entre otros.

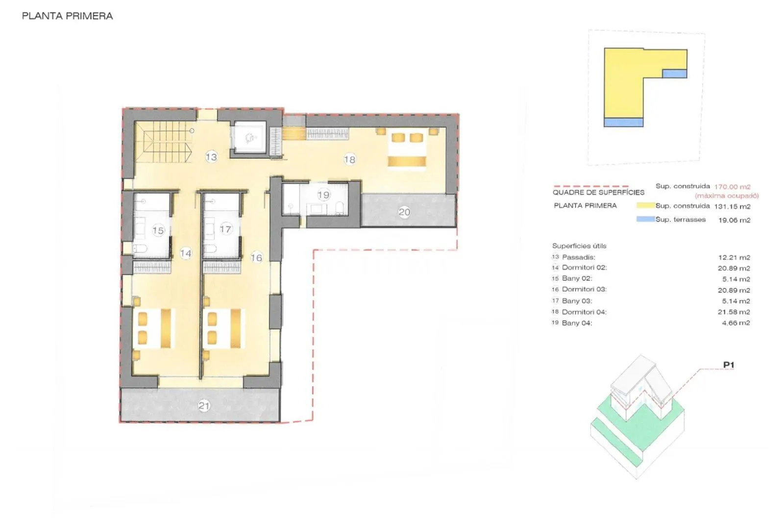
La propiedad tiene una superficie construida aproximada de 597,69 m² y se distribuye de la siguiente manera.

Accediendo a la propiedad por la planta -1 encontramos un amplio garaje con capacidad para 7 vehículos y dos salas destinadas a la sala técnica de la propiedad y a la zona de máquinas, una vez pasadas estas estancias disponemos de un pasillo que nos conecta a la planta -1 mediante una escalera o un ascensor.

La siguiente planta está destinada a la zona de día donde vemos un amplio y luminoso salón comedor con cocina integrada totalmente equipada con electrodomésticos de alta gama e isla central. Junto a esta estancia también tenemos la primera suite de la propiedad, dispone de vestidor y baño completo con ducha. El dormitorio es totalmente exterior. Esta zona se complementa con un aseo de cortesía. Destacamos de esta propiedad el maravilloso jardín de más de 240 m² que rodea la propiedad y tiene acceso directo desde el comedor.

La última planta de la propiedad esta destinada totalmente a la zona de noche donde encontramos tres dormitorios, los tres en suite con vestidor y baño completo con ducha. Todos son exteriores y tiene salida directa a dos terrazas con unas impresionantes vistas a las montañas y al Principado de Andorra.

Solicitar más información

Inmuebles similares Escaldes-Engordany

Ref: RS481

Compra · Casas

Escaldes-Engordany

  • 784 m2
  • 4
  • 5
  • 10

3.150.000