Contecta con wahtsapp

Home > propiedades > Chalet 9 | El Mirador de Anyós

RS1522

2.485.500 €

Chalet 9 | El Mirador de Anyós

  • 480 m2
  • 71 m2
  • 4
  • 5
  • 3

Chalet 9 | El Mirador de Anyós

  • Cocina Amueblada
  • Armarios Empotrados
  • Ascensor
  • Exterior
  • Zonas Verdes
  • Gimnasio
  • Lavadero

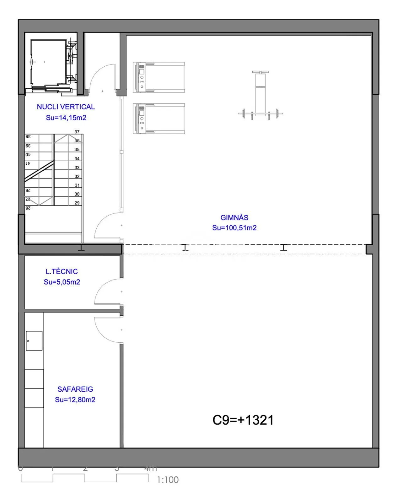
El Chalet 9 del Mirador de Anyós redefine el concepto de vivienda sostenible y de alta gama. Diseñado según los estrictos estándares Passivhaus, este chalet de líneas rectangulares aprovecha al máximo la luz natural y la orientación para garantizar espacios saludables, un confort térmico óptimo y un consumo energético mínimo.

Con 485 m² construidos, el Chalet 9 se abre a vistas espectaculares del valle, integrándose de manera armoniosa con el paisaje. Dispone de un aparcamiento privado de 90 m², una sala polivalente diáfana ideal para gimnasio, spa o despacho, y 189 m² de zonas exteriores entre terraza y jardín, concebidas para disfrutar de la privacidad y el contacto con la naturaleza.

En el interior, el chalet cuenta con cuatro habitaciones y cinco baños (uno de ellos aseo), con una distribución flexible que se adapta a las necesidades de cada propietario. Los materiales naturales, la luminosidad y la conexión con la vegetación convierten este chalet en un verdadero refugio de bienestar, donde el lujo y la sostenibilidad conviven en perfecta armonía.

Solicitar más información

Inmuebles similares La Massana

Ref: RS1521

Compra · Casas

La Massana

  • 490 m2
  • 4
  • 5
  • 3

2.495.000

Ref: RS1513

Compra · Casas

La Massana

  • 500 m2
  • 5
  • 6
  • 2

3.500.000

Ref: RS1523

Compra · Casas

La Massana

  • 480 m2
  • 4
  • 5
  • 3

2.495.000